Dakotastraat 12
6562 HG Groesbeek
€ 425.000,- k.k.
Kenmerken

Overdracht
- StatusVerkocht
- Vraagprijs€ 425.000,- k.k.

Bouwvorm
- Type woningTussenwoning
- Bouwjaar2012
- Woonoppervlakte116 m2
- Inhoud390 m3
- Aantal slaapkamers3

Buiten
- LiggingenIn woonwijk
Aan rustige weg - TuinVoortuin
Achtertuin - Perceeloppervlakte130 m2
- Externe bergruimte6 m2

Energie
- VerwarmingCV ketel, Vloerverwarming gedeeltelijk
- Bouwjaar CV ketel2012
- Isolatie woningVolledig geisoleerd
Omschrijving
In de jonge en kleinschalige nieuwbouwwijk "De Breedeweg" vindt u deze moderne en instapklare tussenwoning. De woning beschikt over een zonnige tuin en een vrijstaande berging, gelegen op een perceel van 130 m².
Indeling
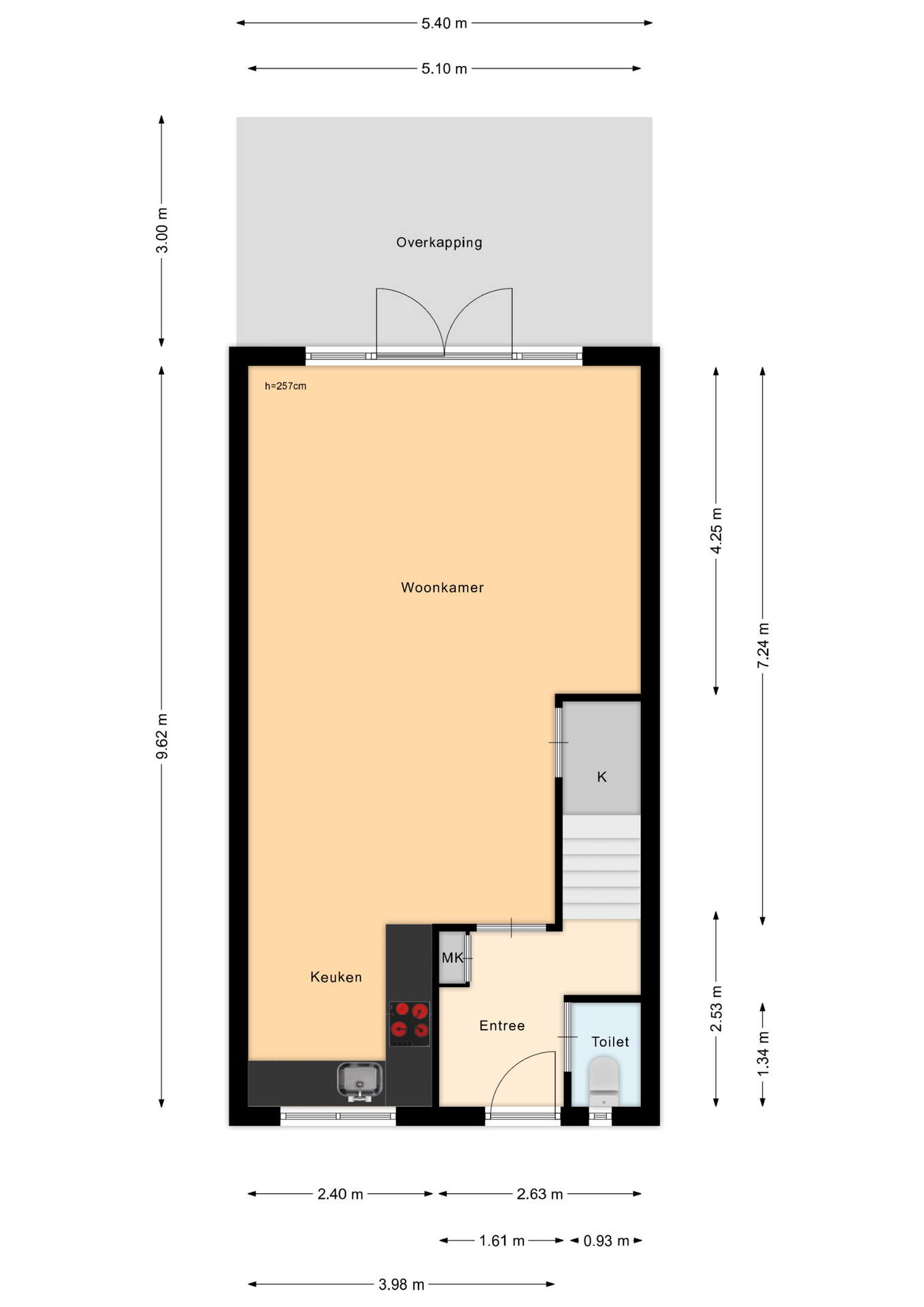
Begane grond: Bij binnenkomst treft u de hal met garderobe, trapopgang en een toiletruimte met wandcloset. De ruime tuingerichte woonkamer is voorzien van een bergkast en een grote raampartij met openslaande deuren naar het terras en de tuin. Aan de straatzijde bevindt zich de open keuken, die is uitgerust met een moderne, lichte hoekopstelling en diverse inbouwapparatuur. De begane grond is geheel voorzien van een doorlopende pvc-vloer.
Eerste verdieping: De overloop geeft toegang tot de moderne badkamer, die is voorzien van een inloopdouche, wandcloset en een wastafelmeubel. De verdieping herbergt drie slaapkamers, waaronder de master bedroom met openslaande deuren naar een Frans balkon. Ook een tweede slaapkamer heeft openslaande deuren naar het balkon.
Tweede verdieping: Via een vaste trap bereikt u de ruime bergzolder, die is voorzien van een groot dakraam, witgoedaansluitingen, de cv-installatie en de omvormer van het zonne-energiesysteem. Deze extra verdieping is ideaal voor het creëren van een slaap-, logeer- of werkruimte.
Buiten: De voortuin is aangelegd met een haagje, siergrind en een beplante border. De achtertuin, gelegen op het zuidwesten, biedt veel privacy doordat deze geheel is omsloten door tuinschermen. De zonnige tuin beschikt over een betegeld terras met overkapping, een gazon, een vrijstaande berging en een achterom.
Omgeving: De woning, gebouwd in 2012, ligt in een kindvriendelijke wijk met een speelse invulling en biedt een ideale ligging aan de rand van het landelijke buitengebied. In de nabije omgeving bevindt zich het recent aangelegde Voi.jerland, een prachtig natuurgebied met kleurrijke bloemen en planten die vlinders en bijen aantrekken. De natuurgebieden "De Bruuk", "Sint Jansberg" en het "Reichswald" liggen op loopafstand. Daarnaast vindt u in de directe omgeving een speeltuin, buurtsupermarkt, basisschool, kinderdagopvang, buurtcentra, sport- en recreatiefaciliteiten, en openbaar vervoer. Het centrum van Groesbeek is op fietsafstand en de Golfbaan "Rijk van Nijmegen" is in slechts 8 autominuten te bereiken. De universiteitsstad Nijmegen en de uitvalswegen A73 (Nijmegen-Venlo) en A77 richting Duitsland zijn in 15 autominuten bereikbaar.
Algemeen:
Woonoppervlakte: ca. 116 m²
Gebouwgebonden buitenruimte: ca. 6 m²
Externe bergruimte: ca. 6 m²
Inhoud: ca. 390 m³
De woning is deels uitgerust met vloerverwarming, beschikt over één airco-unit op de overloop en is voorzien van 6 zonnepanelen.
Andere woningen in deze omgeving
Acaciastraat 1
6562 EL Groesbeek
In een rustige en kindvriendelijke woonwijk in het kerkdorp Breedeweg ligt deze verzorgde hoekwoning met ruime...
92 m2
350 m3
247 m2
4
Meidoornplantsoen 11
6562 GG Groesbeek
Op een rustige, kindvriendelijke locatie in de Breedeweg, ligt deze goed onderhouden geschakelde twee-onder-ee...
136 m2
535 m3
225 m2
4
Market Garden 10
6562 HD Groesbeek
In een jonge, kleinschalige nieuwbouwwijk in het kerkdorp “De Breedeweg” vindt u deze fijne tussenwoning m...
109 m2
380 m3
143 m2
5




