Gerard Douweg 22
6562 BS Groesbeek
€ 425.000,- k.k.
Kenmerken

Overdracht
- StatusBeschikbaar
- Vraagprijs€ 425.000,- k.k.

Bouwvorm
- Type woningTussenwoning
- Bouwjaar1963
- Woonoppervlakte125 m2
- Inhoud485 m3
- Aantal slaapkamers5

Buiten
- LiggingenIn woonwijk
Aan rustige weg - TuinVoortuin
Achtertuin - Perceeloppervlakte137 m2
- Externe bergruimte11 m2

Energie
- VerwarmingCV ketel, Gashaard
- Bouwjaar CV ketel2015
- Isolatie woningDubbel glas
Dakisolatie
Omschrijving
In de kindvriendelijke woonwijk “De Drul”, aan een rustig pleintje met uitsluitend bestemmingsverkeer, vindt u deze keurige, verrassend ruime, uitgebouwde en gedeeltelijk onderkelderde tussenwoning met maar liefst vijf slaapkamers en een zonnige tuin, gelegen op een perceel van 137 m².
Indeling
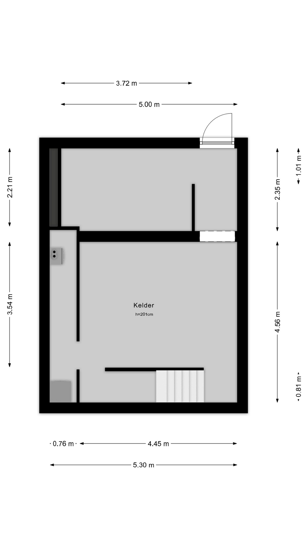
Onder verdieping: De woning is gedeeltelijk onderkelderd. De kelderruimte/souterrain met cv-installatie en witgoedaansluitingen is bereikbaar vanuit de keuken en de achtertuin.
Begane grond: Trapje naar entree, hal met garderobe, trapopgang en toiletruimte met wandcloset en fonteintje. Aan de straatzijde gelegen halfopen keuken met grote raampartij en toegangsdeur naar de kelderruimte. De keuken is voorzien van een rechte keukenopstelling met diverse inbouwapparatuur, een separate koffiecorner en een ingebouwde apparatenkast. De uitgebouwde, tuingerichte woonkamer beschikt over een schouw met gashaard, een lichtkoepel en een grote raampartij met deur naar het terras en de tuin.
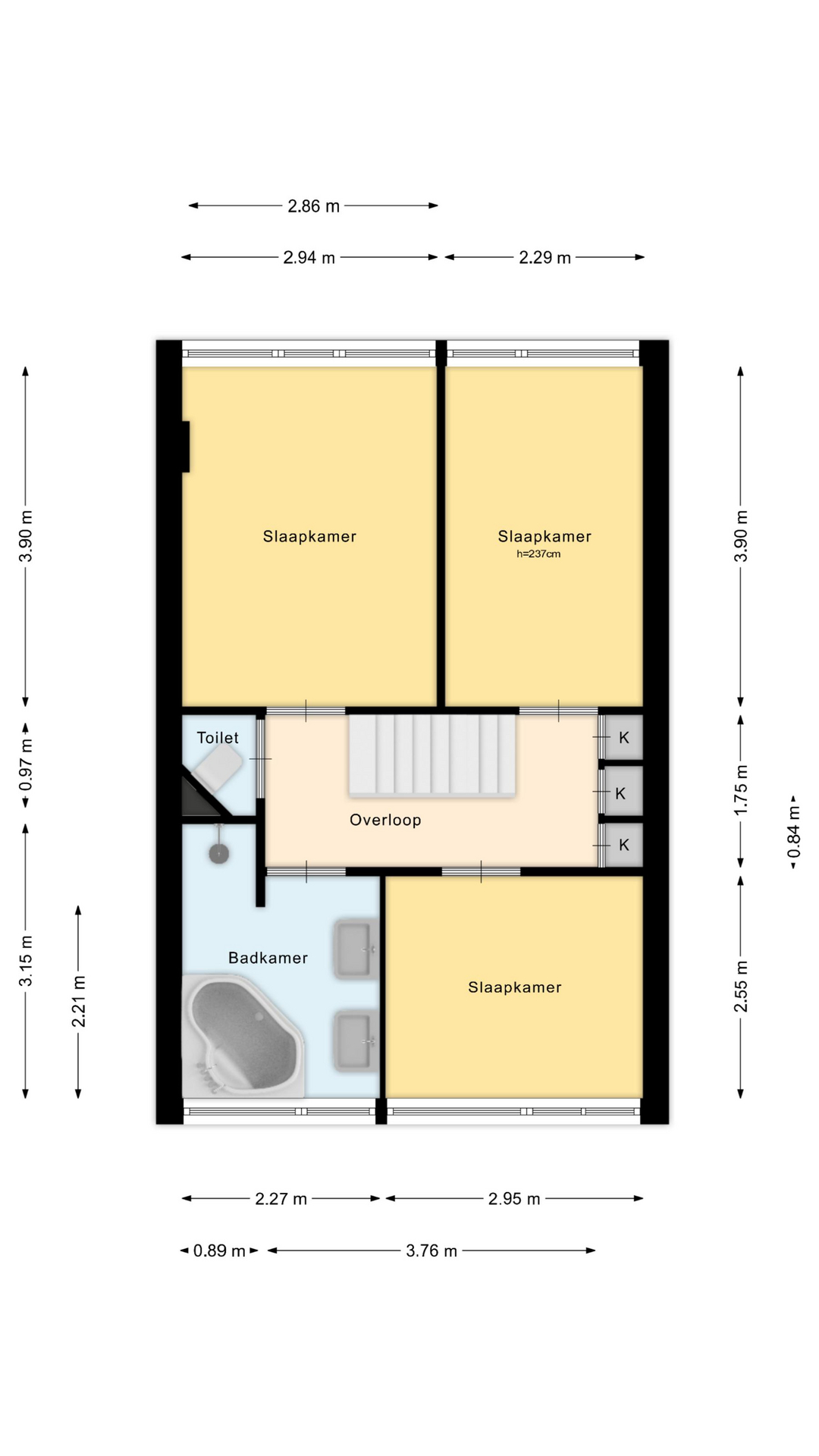
Eerste verdieping: Overloop met inbouwkasten en separate toiletruimte met wandcloset. Drie slaapkamers, waarvan één momenteel is ingericht als inloopkast. Ruime badkamer met bad, douchecabine en twee wastafels.
Tweede verdieping: Via een vaste trap bereikbare volwaardige extra verdieping met overloop en twee royale slaapkamers.
Buiten: Beplante voortuin. De op het zuiden gesitueerde achtertuin is volledig omsloten door tuinschermen, waardoor deze veel privacy biedt. De zonnige tuin beschikt over een ruim bestraat terras, een vrijstaande stenen berging, een achterom, een trap naar de kelderruimte/souterrain en een trap naar de woonkamer.
Omgeving: De in 1963 gebouwde woning ligt op loopafstand van het centrum en de prachtige bossen van Groesbeek. De bosrijke en heuvelachtige omgeving leent zich uitstekend voor wielrennen, mountainbiken, paardrijden, Nordic Walking, hardlopen of een heerlijke wandeling. Golfbaan “Rijk van Nijmegen” ligt op 8 autominuten en de universiteitsstad Nijmegen is in circa 15 autominuten bereikbaar. In de directe omgeving bevinden zich diverse speelgelegenheden met speeltoestellen voor kinderen en centrale voorzieningen zoals supermarkten, winkels, gezondheids- en zorgcentra, scholen, kinderdagopvang, een cultureel centrum, uitvalswegen, openbaar vervoer, sport- en recreatiefaciliteiten en uitgestrekte natuurgebieden en bossen.
Algemeen: Woonoppervlakte ca. 125 m², overige inpandige ruimte ca. 35 m², externe bergruimte ca. 11 m², inhoud ca. 485 m³ en perceeloppervlakte ca. 137 m².
Andere woningen in deze omgeving
van de Veldeweg 87
6562 WE Groesbeek
Op een woonerf in de rustige en kindvriendelijke woonwijk “De Drul”, aan een autoluwe straat met uitsluite...
160 m2
505 m3
405 m2
6
Stekkenberg 51
6561 XG Groesbeek
In het geliefde Groesbeek-Noord, op korte afstand van uitgestrekte bossen en natuur, staat deze recent gerenov...
112 m2
410 m3
465 m2
6
van de Veldeweg 112
6562 WJ Groesbeek
In de rustige, kindvriendelijke wijk De Drul ligt deze verzorgde hoekwoning met eigen oprit, berging en zonnig...
97 m2
320 m3
135 m2
4




